- Главная
- Проекты домов, бань
- Проекты спа-комплексов
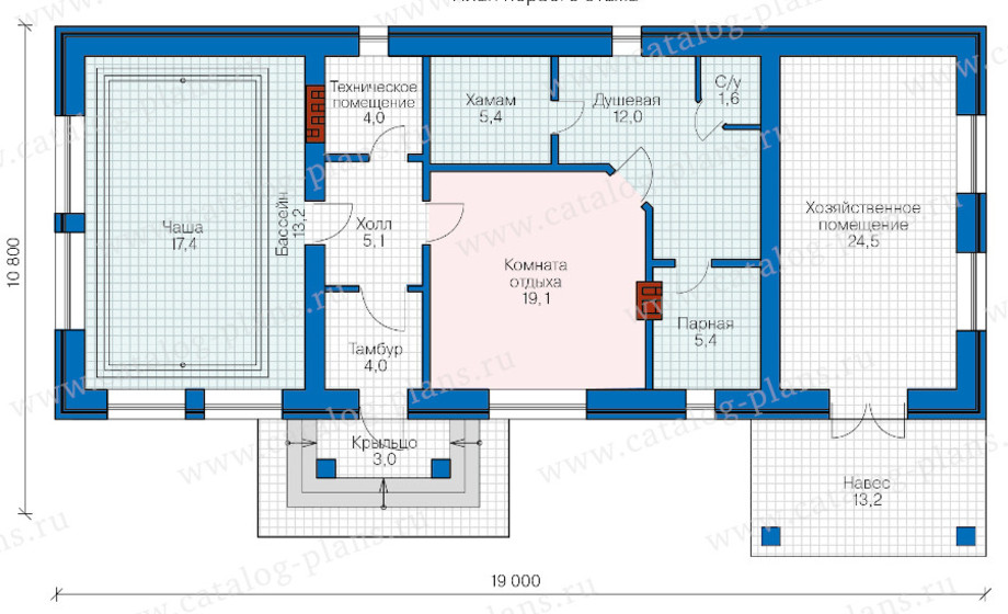
- НОВИНКА. В-64. СПА-комплекс с хамам и сауной 19x8 метров.
комната отдыха, помещение для хамам, русская парная, 1 сан-узел, бассейн.:
Проект В-64 . Строительство банного СПА- комплекса в европейском архитектурном стиле, для настоящих ценителей загородной жизни.
В стоимость строительства входит: АР (архитектурный проект) КР (фундамент, стены, кровлю) фундамент (геология) , ввод и разводка канализации, водопровода(гильза), электроэнергии (гильза) , наружные стены из газосиликатного блока (300мм, внутренние и перегородки (120мм) , бетонные черновые полы, крыша металлочерепица «Супер-монтерей» , межэтажное перекрытие деревянные балки 200 мм, бетонная чаша бассейна с техническим помещением.
Материал стен можно изменять по желанию. Стены могут быть из газосиликатного блока, керамзитобетонного блока, керамического блока.
Материал кровли можно изменять по желанию. Крыша может быть из металлочерепицы, металлочерепица «композитная», фальцевая кровля «клик-фальц» профлист
Гарантия на выполненные работы 48 месяцев. Предлагаем строительство с отделкой под ключ.
полный комплекс строительных услуг
Создаем проект дома, либо выбираете из готовых
Проводим геодезию участка
Возводим фундамент
Возводим стены и перекрытия
Кровельные работы
Фасадные работы
Инженерные работы
Получистовая отделка
Чистовая отделка
дачных домов, коттеджей , бань,
в любой ценовой категории,
в любой точке Республики Беларусь!
утвердим проект, который вам понравится
и построим все под ключ.






