- Главная
- Проекты домов, бань
- Проекты спа-комплексов
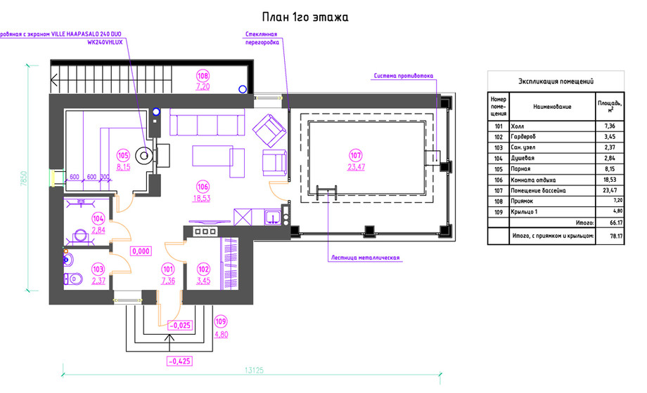
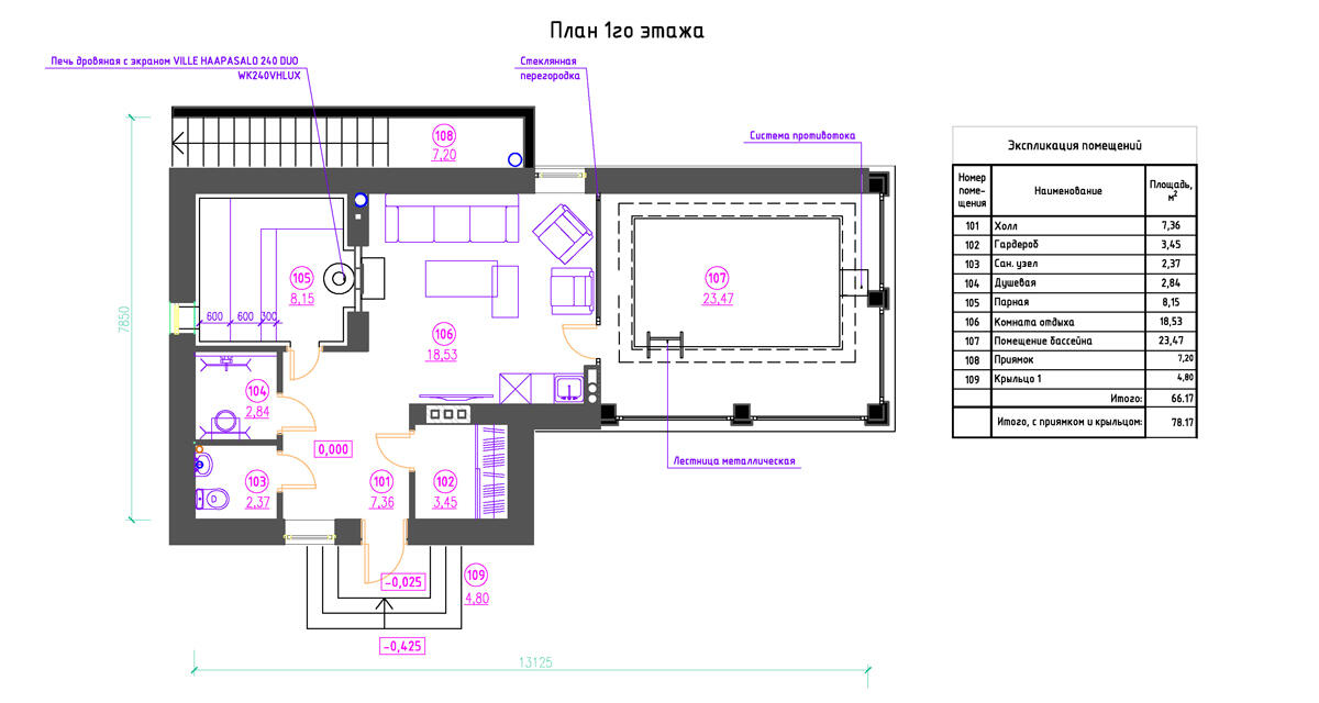
- НОВИНКА. Е-77. СПА-комплекс с цокольным этажом 7.9*13.2 метров.
бассейн, цокольный этаж, комната отдыха, русская парная, 2 сан-узла.:
Эта небольшой банный комплекс с бассейном и русской парной , созданная нашим архитектором. – наглядный пример того, мы спроектировать объект, в котором есть все необходимое для полноценного комфортного отдыха. Площадь, которую занимает строение, составляет более 80 кв.м и столько же цокольного этажа. При этом нам удалось найти в нем место для массы функциональных и технических опций. Результатом с удовольствием делимся с вами.
Одна из перегородок в комнате отдыха – стеклянная, с дверью, ведущей в бассейн. А сам бассейн отделен от улицы большими витражами по двум стенам: можно плавать, нырять, бороться с противотоком, лежать на воде или пить кофе в шезлонге, одновременно наслаждаясь видом за окном.
Новинкой нашего проекта является цокольный этаж. Вернувшись на улицу и обойдя постройку, обнаруживаем приямок с лестницей под массивным деревянным навесом. Лестница ведет в цокольный этаж. Здесь находятся железобетонная чаша бассейна и обслуживающее его оборудование, отдельное техническое помещение, в котором можно расположить тренажерный зал, бильярдную, погреб для хранения разных продуктов питания, а также санузел и кладовая.
В стоимость строительства входит: Постоянный технический контроль, АР (архитектурный проект),КР ( конструктивное решение на фундамент, чашу бассейна, стены, кровля) фундамент (геология), цокольный этаж по всему периметру, наружные стены из газосиликатного блока 300 мм , внутренние перегородки из газосиликатного блока 120 мм , перекрытие деревянные балки 200 мм , бетонная чаша для бассейна, бетонные черновые полы 100 мм, ввод и разводка канализации, водопровод(гильза), ввод электроэнергии(гильза) .
Оборудование для бассейна в стоимость не входит все зависит от комплектации бассейна и страны производителя.
Гарантия на выполненные работы 48 месяцев. Предлагаем строительство с отделкой под ключ.
полный комплекс строительных услуг
Создаем проект дома, либо выбираете из готовых
Проводим геодезию участка
Возводим фундамент
Возводим стены и перекрытия
Кровельные работы
Фасадные работы
Инженерные работы
Получистовая отделка
Чистовая отделка
дачных домов, коттеджей , бань,
в любой ценовой категории,
в любой точке Республики Беларусь!
утвердим проект, который вам понравится
и построим все под ключ.






