- Главная
- Проекты домов, бань
- Проекты домов
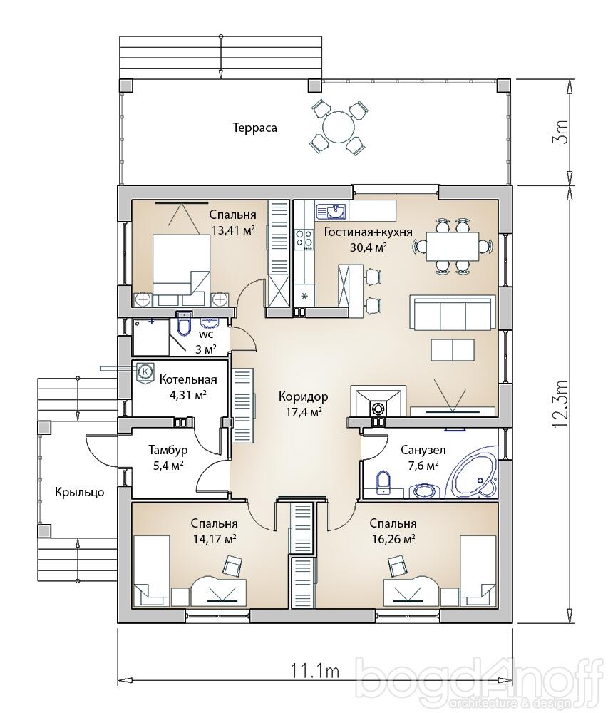
- С Отделкой. ТН-64. Проект дома 12.3*11.1 метр.
3 спальни, гостиная, 2 сан-узла.:
Проект ТН — 64 . ХИТ -СТРОИТЕЛЬСТВА .Современный стильный дом для круглогодичного проживания. Три просторных жилых комнаты и два сан-узла позволяет создать максимальный комфорт для проживания большой и дружной семьи. Из общей комнаты есть выход на большую террасу, где так же можно построить печь барбекю.
В стоимость строительства входит: АР (архитектурный проект) КР (фундамент, стены, кровля) фундамент (геология) , ввод и разводка канализации, ввод (гильзы) водопровода ,электричества, наружные стены из газосиликатного блока (300мм) внутренние перегородки (120мм), бетонные черновые полы 100 мм, крыша метало-черепица «Монтерей» толщина металла 0,45 мм . Балки перекрытия 200 мм.
Стоимость строительства с отделкой под ключ 410 000 бел рублей.
Предлагаем строительство с полной отделкой под ключ. Гарантия на выполненные работы 48 месяцев.
полный комплекс строительных услуг
Создаем проект дома, либо выбираете из готовых
Проводим геодезию участка
Возводим фундамент
Возводим стены и перекрытия
Кровельные работы
Фасадные работы
Инженерные работы
Получистовая отделка
Чистовая отделка
дачных домов, коттеджей , бань,
в любой ценовой категории,
в любой точке Республики Беларусь!
утвердим проект, который вам понравится
и построим все под ключ.













