- Главная
- Проекты домов, бань
- Проекты домов
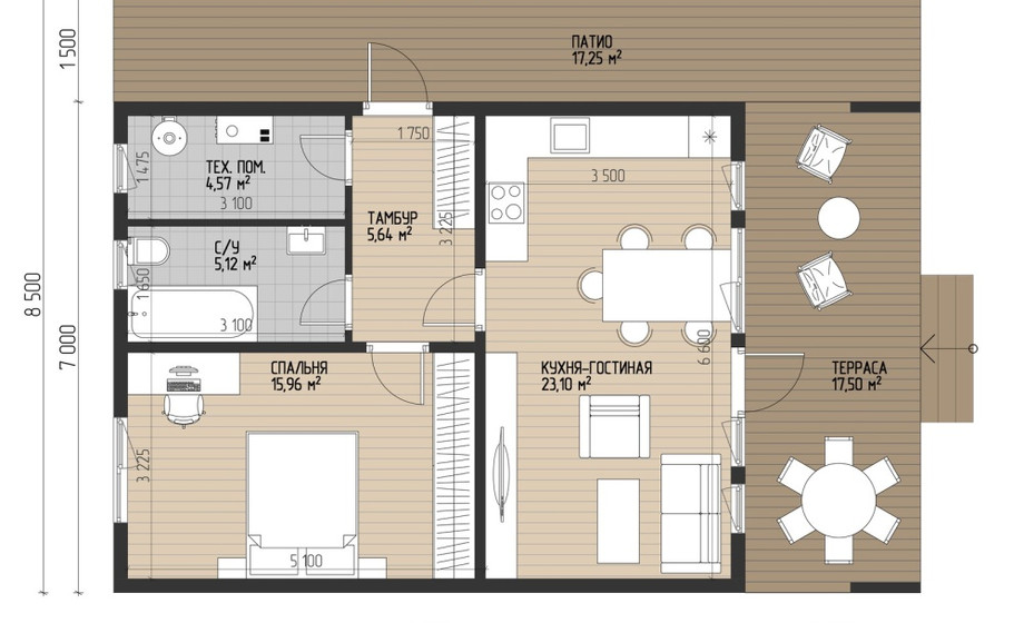
- НОВИНКА Одноэтажный дом с террасой 7x9 метров
1 спальня, гостиная-кухня, 1 сан-узел:
Проект К — 56 . Современный стильный дом для круглогодичного проживания.
В стоимость строительства входит: АР (архитектурный проект) КР (фундамент, стены, кровля) фундамент (геология) , ввод и разводка канализации, ввод (гильзы) водопровода ,электричества, наружные стены из газосиликатного блока (300мм) внутренние перегородки (120мм), бетонные черновые полы 100 мм, крыша метало-профиль толщина металла 0,45 мм .
Предлагаем строительство с полной отделкой под ключ. Гарантия на выполненные работы 48 месяцев
Стоимость строительства с отделкой под ключ 368 000 бел рублей.
полный комплекс строительных услуг
Создаем проект дома, либо выбираете из готовых
Проводим геодезию участка
Возводим фундамент
Возводим стены и перекрытия
Кровельные работы
Фасадные работы
Инженерные работы
Получистовая отделка
Чистовая отделка
дачных домов, коттеджей , бань,
в любой ценовой категории,
в любой точке Республики Беларусь!
утвердим проект, который вам понравится
и построим все под ключ.











