- Главная
- Проекты домов, бань
- Проекты домов
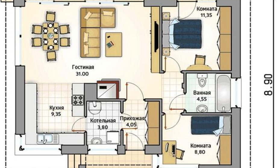
- Проект Z-89, размер 11.3* 8.90 метров
две спали и большая гостиная :
кухня, котельная, ванная :
Современный стильный дом для круглогодичного проживания.
В стоимость строительства входит: АР (архитектурный проект) , фундамент (геология) , ввод и разводка канализации, ввод (гильзы) водопровод -электроэнергия, бетонные черновые полы, наружные стены из газосиликатного блока (300мм) , внутренние перегородки (100мм) , , крыша, метало- черепица толщина металла 0,45 мм , межэтажное перекрытие деревянные балки 200мм .
Гарантия на выполненные работы 36 месяцев.
Предлагаем строительство с отделкой под ключ.
полный комплекс строительных услуг
Создаем проект дома, либо выбираете из готовых
Проводим геодезию участка
Возводим фундамент
Возводим стены и перекрытия
Кровельные работы
Фасадные работы
Инженерные работы
Получистовая отделка
Чистовая отделка
дачных домов, коттеджей , бань,
в любой ценовой категории,
в любой точке Республики Беларусь!
утвердим проект, который вам понравится
и построим все под ключ.




