- Главная
- Проекты домов, бань
- Проекты домов
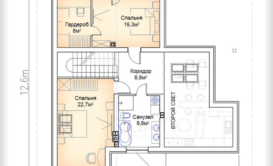
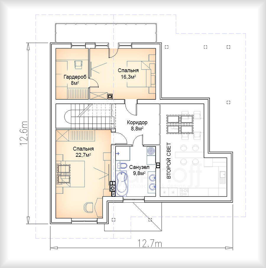
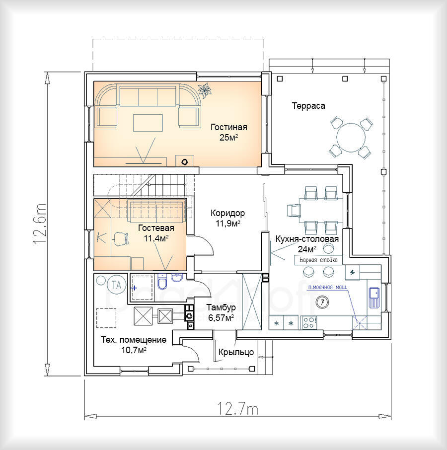
- C ОТДЕЛКОЙ - Проект К-44. р 12.7*12,6 метров.
три жилых комнаты:
гостиная :
25 кв метров
кухня-столовая :
24 кв метров
2 сан-узла:
2 спальни, гостиная, 2 сан-узла :
Современный стильный дом для большой и дружной семьи.
В стоимость строительства входит: АР (архитектурный проект) КР (фундамент, стены, кровля) фундамент (геология) , ввод и разводка канализации, ввод (гильзы) водопровода ,электричества, наружные стены из газосиликатного блока (300мм), бетонные черновые полы 100 мм внутренние перегородки (120мм) крыша метало- черепица толщина металла 0,5 мм , межэтажное перекрытие деревянные балки 200мм .
СТОИМОСТЬ СТРОИТЕЛЬСТВА С ОТДЕЛКОЙ ПОД КЛЮЧ 602 000 бел рублей.
Предлагаем строительство с отделкой под ключ. Гарантия на выполненные работы 48 месяцев.
полный комплекс строительных услуг
Создаем проект дома, либо выбираете из готовых
Проводим геодезию участка
Возводим фундамент
Возводим стены и перекрытия
Кровельные работы
Фасадные работы
Инженерные работы
Получистовая отделка
Чистовая отделка
дачных домов, коттеджей , бань,
в любой ценовой категории,
в любой точке Республики Беларусь!
утвердим проект, который вам понравится
и построим все под ключ.
















