ХИТ Строительства. КВ-99. Комфортная баня 10.6*6.5 метров
ХИТ Строительства. КВ-99. Комфортная баня 10.6*6.5 метров
Цена строительства от: 125 000 BYN
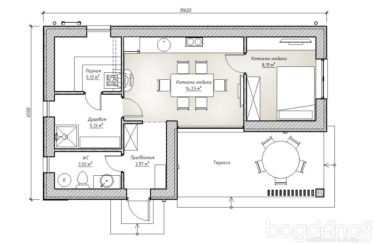
  • Общая площадь:

    50 м2

  • русская парная, комната отдыха, гостевая комната, сан-узел. душевая. :

  • Срок строительства: до 4 месяцев
    Характеристики
  • русская парная, комната отдыха, гостевая комната, сан-узел. душевая. :

  • Описание

    Банный комплекс спроектирован комфортного отдыха и временного проживания. Каждый элемент интерьера продуман так,что бы создать атмосферу уюта и покоя владельцев и гостей банного комплекса.

    В стоимость строительства входит: АР(архитектурный проект)  фундамент(геология)  , ввод  канализации, водопровода, электроэнергии,   наружные стены из газосиликатного  блока (300мм) бетонные черновые полы 100 мм,   внутренние и перегородки (120мм) , монолитное перекрытие . 

    Гарантия на выполненные работы 36 месяцев.  

     

    Предлагаем строительство с отделкой под ключ.

    Наши преимущества
    Мы строим дачные дома, коттеджи , бани под ключ и берем на себя
    полный комплекс строительных услуг

    Создаем проект дома, либо выбираете из готовых

    Проводим геодезию участка

    Возводим фундамент

    Возводим стены и перекрытия

    Кровельные работы

    Фасадные работы

    Инженерные работы

    Получистовая отделка

    Чистовая отделка

    Мы занимаемся строительством под ключ
    дачных домов, коттеджей , бань,
    в любой ценовой категории,
    в любой точке Республики Беларусь!
    По вашему желанию разработаем,
    утвердим проект, который вам понравится
    и построим все под ключ.

    Контакты

    • г. Минск, ул. Якубова 10
    • +375 (44) 576-24-99
    Оставить заявку
    Заказать консультацию
    Нажимая на кнопку, вы даете согласие на обработку своих персональных данных